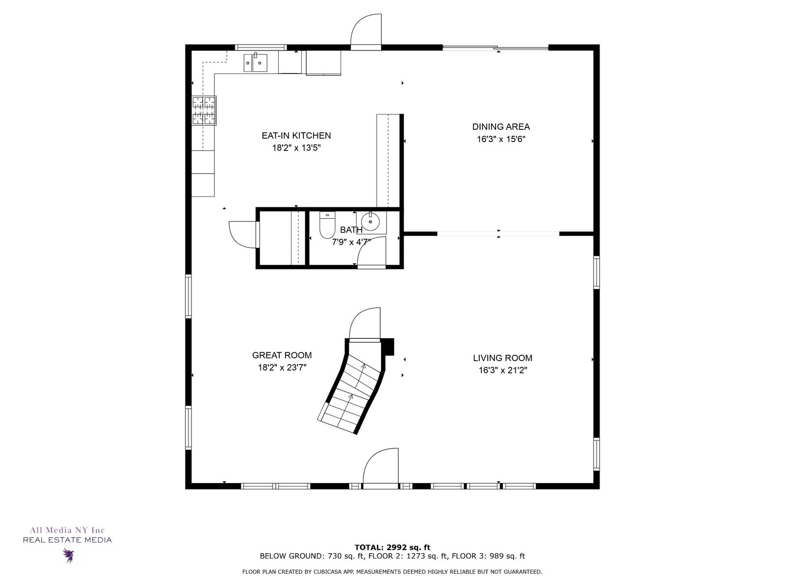
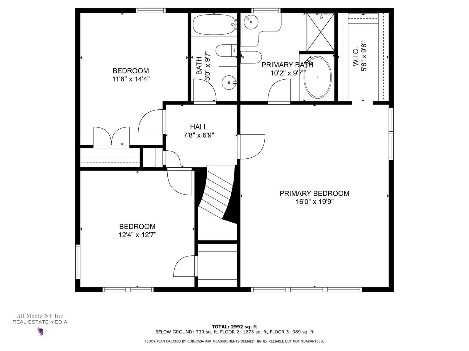
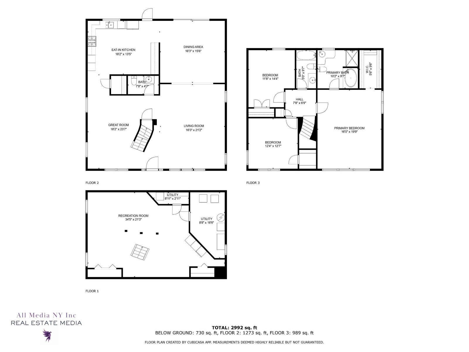
Welcome to this inviting 3,250 sq. ft. home in the heart of Albertson, NY, where comfort meets timeless design. Completely rebuilt in 1992 (excluding the basement) and lovingly updated over the years, this home has been thoughtfully cared for and beautifully maintained. Step inside to a welcoming entryway highlighted by a stunning bridal staircase. The lower level features elegant crown moldings and a spacious layout, including a large formal living room and dining room, perfect for entertaining family and friends. Natural light fills the entire lower level through large windows, creating a bright and inviting atmosphere in every room. Upstairs, the primary suite offers a generous layout with a walk-in closet. Two additional bedrooms and a full bath complete the upper level. This home blends warmth, space, and character, and it's truly one you don’t want to miss!
Property Details
Photos
Map
Presented By
 
     
 
 
 
 
 
 
 
 
 
 
 
 
 
 
 
 
 
 
 
 
 
 
 
 
 
 
 
 
 
 
 
 
 
 
 
 
 
 
 
 
       
       
       
      